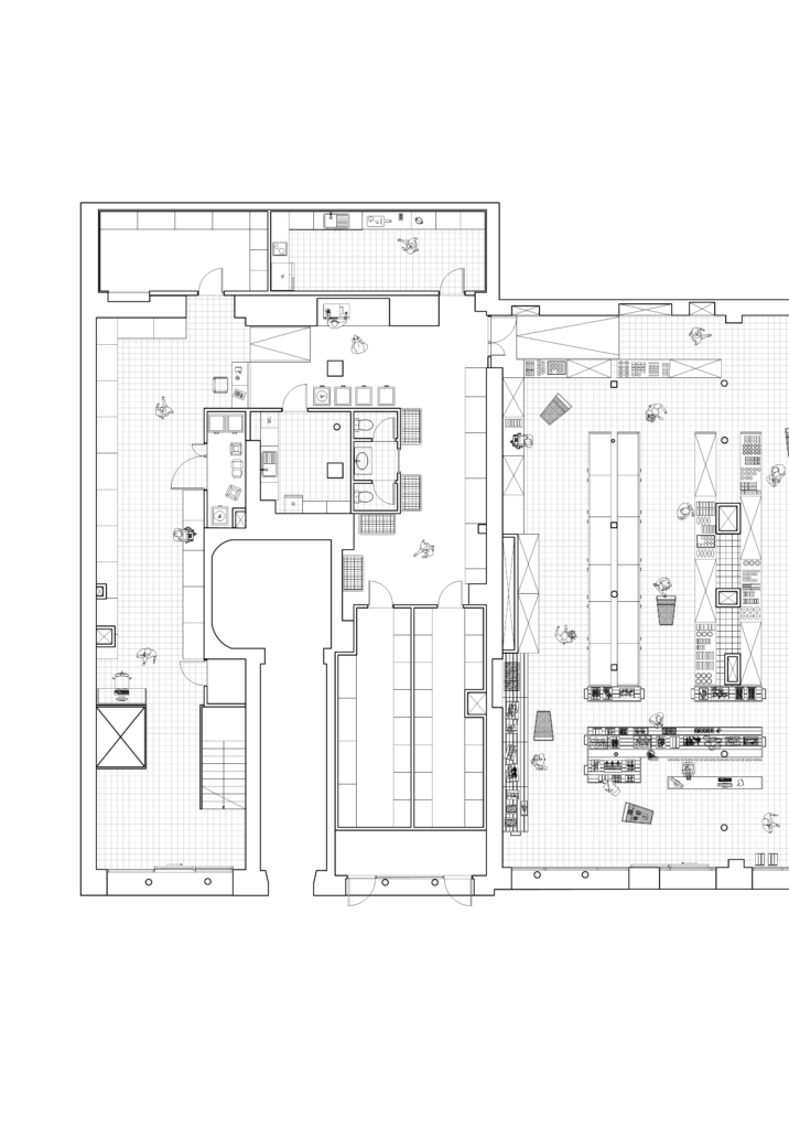
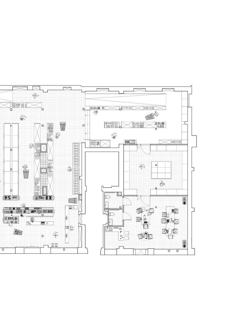
Composer un espace commun en mouvement.
Le projet développé pour le Supercafoutch consiste en la conception et la mise en place d’un dispositif spatial destiné à accompagner les usages d’un supermarché participatif et coopératif. Il s’agit moins de transformer radicalement le lieu que de proposer des ajustements architecturaux capables de soutenir son fonctionnement collectif et évolutif. Le Supercafoutch, par son modèle, repose sur une organisation horizontale et une implication directe de ses usagers. Cette dynamique produit un espace en constante transformation, où les usages, les circulations et les modes d’occupation ne cessent d’évoluer. L’enjeu du projet est d’intervenir sans figer cette vitalité, en développant des structures capables d’absorber ces variations.
L’intervention propose ainsi un dispositif ouvert, capable d’accueillir des usages variés et évolutifs. Le projet ne cherche pas à rationaliser le lieu, mais à en préserver la vitalité, à rendre lisible ce qui fait sa richesse : les circulations libres, les superpositions d’objets et de pratiques, les dynamiques collectives en constante évolution. Ce foisonnement devient alors une matière de projet, un terrain d’expérimentation où l’architecture agit par ajustements, par fragments, par touches successives. Le travail s’appuie sur une économie de moyens assumée : recours au réemploi, assemblages simples, matériaux bruts. Cette approche permet de répondre à des contraintes à la fois économiques, logistiques et écologiques, tout en inscrivant le projet dans une esthétique du faire, visible et accessible. Le chantier devient lui-même un prolongement du projet, impliquant les usagers dans certaines phases de fabrication ou d’installation. L’espace ainsi produit ne cherche pas à ordonner de manière définitive, mais à rendre possible. Il accompagne les pratiques existantes, facilite les usages, tout en laissant place à l’imprévu et à l’évolution. L’architecture agit ici comme un support, un cadre souple qui structure sans contraindre.
À travers cette intervention, il s’agit de penser une architecture capable de s’ajuster à des modes d’organisation collectifs, en assumant leur complexité et leur instabilité comme des ressources plutôt que comme des contraintes.


